Собрал все материалы в кучу для ответа на вопросы "Что влияет на полный привод?" и "Может ли муфта передавать переменный момент (не 50:50, а, например, 90:10)?", получилость следующее:
Аналог муфты полного привода Сорика R 2009-2012.
1. BorgWarner.
Сотрудничает с КИА более 20 лет. Имеет подразделение в Корее по производству турбин. Разрабатывала нашу автоматическую коробку, цепь для двигателя. Фирма - специалист по муфтам, делает их для всего, что движется. В 2010 году ей надоели конкуренты-фины Халдекс и она их купила за четверть миллиарда долларов.
2. Покопавшись на их сайте нашел интересную муфту. Очень она нашу напоминает (те же 2 сцепления, электропривод).
http://www.borgwarner.com/en/torqtransfer/products/Pages/NexTrac.aspx (там есть pdf листовка и мультик). Но в настоящее время BorgWarner больше заняты более дорогими халдексами. На сайте у них сплошной VAG и феррари. Поэтому, можно предположить, что КИА не потянула по цене дорогой халдекс и взяла себе в новый сорь (2013) magna, как на спортридже.
Данные по максимальному моменту они не приводят, но говорят, что она на легкие грузовики ставиться. Разработана в 2008. Вошла в 4-ку номинантов за лучший технодебют года в США. Дебютировала в 2009 на Санте, Спортридже.
По данным:
http://www.autoreview.ru/news/156/16669/NexTrac рассчитан на максимальный крутящий момент 1600 Нм, а его быстродействие — около 0,1 с.
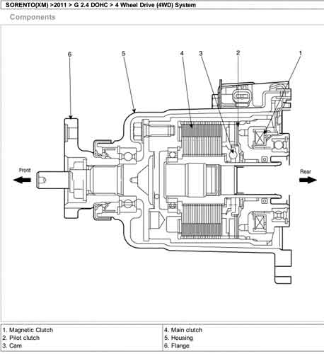
Неоднократно опубликованная муфта КИА в разрезе состоит из
1. Magnetic Clutch - Электромагнитного сцепления.
2. Pilot clutch - Первичного или пилотного сцепления.
3. Cam - Камеры.
4. Mail clutch - Основного сцепления.
5. Корпуса.
6. Фланца.

- Муфта Сорика
Я прикрепил муфту NexTrac в разрезе.
Источник:
http://www.borgwarner.com/en/torqtransfer/products/Literature/BW%20TTS%20-%20NexTrac.pdf

- Муфта NexTrac
Добавлено через 14 минут 3 секунды:Описание работы (материалы КИА kiatechinfo.com)
Оригинал
Operation
• Normal driving situation: 2WD base driving
• 4WD driving in driving situations (rapid activation, cornering etc.)
1. Input the information from each sensor in vehicle
A. Input torque (Throttle position sensor)
B. Cornering situation (Steering angle sensor)
C. Vehicle speed and different wheel speed front &rear (Wheel speed sensor)
D. Braking situation (Brake signal and ABS signal)
2. Distributed the required driving force after 4WD ECU operates.
3. EMC (Electric Magnetic Clutch) operates the primary clutch.
4. Control the cam's opening gap by operation of primary clutch.
5. Control the slip of inner & outer plate.
Control variably the driving force distribution to optimize front & rear driving force.
Перевод (свое не вносил, перевод не украшал)
Нормальная ситуация езды: основная езда в режиме 2WD.
Езда в режиме 4WD в следующих ситуациях (быстрое ускорение, повороты и др.)
1. На вход (блока управления 4WD) подается информация с каждого датчика в машине
A. Входное усилие тяги (датчик положения газа).
B. Информация о повороте (датчик угла руля).
С. Скорость машины и скорости колес переда и зада (Датчик скорости колеса).
D. Информация о торможении (сигнал торможения и АБС сигнал).
2. После обработки сигналов блоком управления происходит распределение необходимого усилия.
3. Электормагнитная муфта работает в качестве первичного сцепления.
4. Первичное сцепление управляет размером открытого зазора камеры (от себя – создает давление на основное сцепление, исменяя конфигурацию корпуса подшипника с металлическим шариком).
5. Происходит управление проскальзыванием внутренних и внешних пластин основного сцепления. Происходит управление переменным распределением силы движения для её оптимизации на передней и задней оси.
Сейчас добавлю картинки первая про первичное сцепление,

- Первичное сцепление
вторая о шариковой камере, которая создает переменное давление на основное сцепление (у NexTrack она называется ball-cam mechanism, шарико-камерный механизм),

- Шариковая камера
третья – схема включения муфты.

- Схемы включения муфты - разъем F52
У нас на муфту приходит, разъем F52 с двумя контактами, что вводит в заблуждение наших товарищей, которые считают, что на разъем подается +12 - для включения муфты и 0 - для выключения, т.е. муфта работает в состояниях ВКЛ и ВЫКЛ. Была даже версия, что муфта работает в импульсном режиме (в импульсном режиме работает блок управления, он регулирует ток изменением скважности импульсов). Это не так, в документации на NexTrac есть ссылка о том, что блок ECU регулирует ток соленоида поступающий через этот разъем.
Источник:
http://www.ansys.com/staticassets/ANSYS/staticassets/resourcelibrary/article/AA-V2-I3-Electromagnetics-Comes-Through.pdfЦитата: According to the level of electrical current provided, an electromagnetic solenoid actuator compresses clutch plates.
Перевод: Электромагнитный соленоид сжимает пластины сцепления в зависимости от уровня подаваемого тока.
То есть, у нас аналоговый алгоритм управления муфтой. Больше ток - больше сжатие, больше момент на оси.
Отключение при перегреве реализуется либо косвенно через обратную связь или термореле, которое может быть установленно в корпусе муфты (не выяснено).
NexTrac работает аналогично и имеет ту же конструкцию.
Вот. Интересно, кто-нибудь смог дочитать это до конца?
