
гаражик тоже хотел на две машинешки,ну сверху пару комнаток сделать,в итоге парочки комнат показалось мало,пришлось расширять вместе с ними и гаражик,вот что получилось-

так что проектируй-не проектируй,все равно потом переделывать захочется,ибо нет предела совершенству.

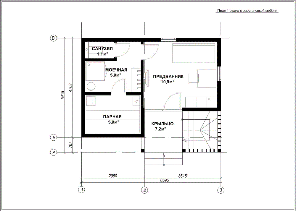
Но размер комнаты отдыха 2,6 на 2,6 будет и ради экономии пространства хотелось бы сделать лестницу занимающущую наименьшее пространство.



