Установка Multitronics TC 750 в дорестайл (дизель)

Обсуждение маршрутных компьютеров (как штатного потолочного, так и альтернативных): характеристики, установка, настройка, погрешности и т.п.

Re: Установка Multitronics TC 750 в дорестайл (дизель)

Сообщение SOrlik001 » 29 апр 2012, 17:16

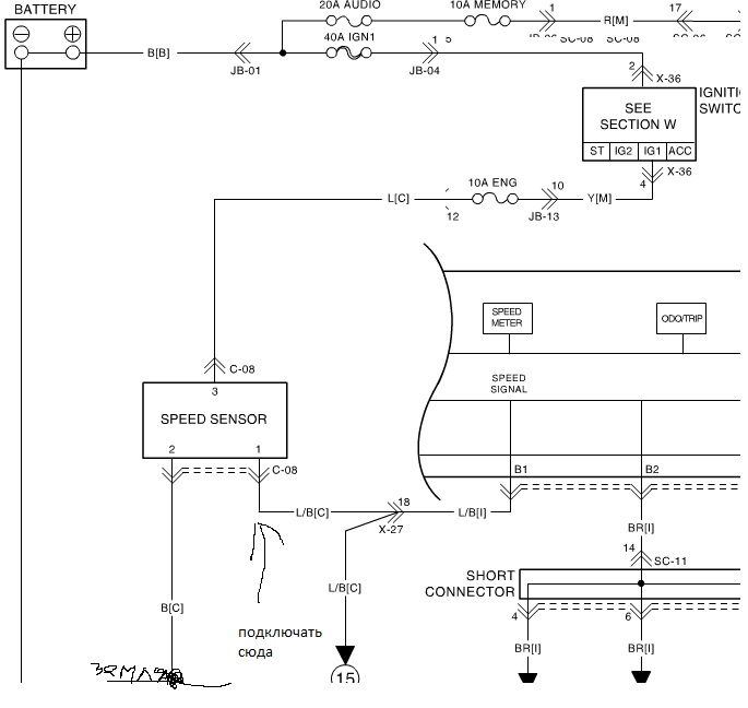
Если нетрудно - посмотри, пожалуйста. Я подцепил к центральному разъёму к синему проводу. Он идёт
к модулю, где определяется скорость, пробег.... К нему подходит 5 дорожек (+В, IG+, GND, 4P, S/S). Я подключил
к S/S. Но показания скорости врут. По спидометру - 60 км/ч, а по маршрутнику - 19...22. И выше не поднимается.
Поправку делал, но результат тот же..
SOrlik001
 
 
Сообщения: 13
Зарегистрирован: 30 окт 2011, 16:12
Откуда: Зеленогорск
Благодарил (а): 0 раз.
Поблагодарили: 0 раз.
Имя: Сергей
Автомобиль: Sorento BL, 2.5TD (14X л/с), TOD, AT
Год выпуска: 2003

Re: Установка Multitronics TC 750 в дорестайл (дизель)

Сообщение elementator » 30 апр 2012, 22:33

завтра гляну , правда я еще подрубал компас там же ... как бы не перепутать .....


ага ! я там же взял подсветку и уровень топлива


а вообще читай инструкцию внимательно . там уточняют что подключать нужно , а что нет
http://www.avtoprofi.ru/index.php/cPath/99
здесь они есть в электронном виде !
Вложения
Новый точечный рисунок.jpg
Изображение
Аватара пользователя
elementator
 
 
Сообщения: 1130
Зарегистрирован: 14 мар 2010, 21:25
Откуда: москва
Благодарил (а): 11 раз.
Поблагодарили: 44 раз.
Имя: Сергей
Автомобиль: Другая машина
Год выпуска: 2018
Доп. информация: Черная, JEELY ATLAS, 2,4, 4WD

Re: Установка Multitronics TC 750 в дорестайл (дизель)

Сообщение SOrlik001 » 02 май 2012, 08:31

Спасибо за инфу!
Я, получается, так же подключил (S/S -это Speed Sensor).
Но откуда такая тянучка с показаниями. Я поставил поправку 330%. Скорость больше
60 км/ч на МК не поднимается. И к тому же медленно падает. Авто уже остановилось,
а на МК ещё 35-30 км/ч кажет. В чём прчина?
SOrlik001
 
 
Сообщения: 13
Зарегистрирован: 30 окт 2011, 16:12
Откуда: Зеленогорск
Благодарил (а): 0 раз.
Поблагодарили: 0 раз.
Имя: Сергей
Автомобиль: Sorento BL, 2.5TD (14X л/с), TOD, AT
Год выпуска: 2003

Re: Установка Multitronics TC 750 в дорестайл (дизель)

Сообщение elementator » 02 май 2012, 09:52

вообще-то провод обозначен L/B(C) - что кажется голубой / черный с полоской ......
Изображение
Аватара пользователя
elementator
 
 
Сообщения: 1130
Зарегистрирован: 14 мар 2010, 21:25
Откуда: москва
Благодарил (а): 11 раз.
Поблагодарили: 44 раз.
Имя: Сергей
Автомобиль: Другая машина
Год выпуска: 2018
Доп. информация: Черная, JEELY ATLAS, 2,4, 4WD

Re: Установка Multitronics TC 750 в дорестайл (дизель)

Сообщение SOrlik001 » 02 май 2012, 10:20

Сергей, я говорю не про провод, а про дорожку
на плате панели приборов, которая идёт от этого провода к самому
модулю спидометра. Там пять контактов под болт, о которых я выше писал.

Добавлено через 8 минут 20 секунд:
Сергей, как у тебя вообще скорость адекватно показывает? Какие поправочные коэффициенты?
SOrlik001
 
 
Сообщения: 13
Зарегистрирован: 30 окт 2011, 16:12
Откуда: Зеленогорск
Благодарил (а): 0 раз.
Поблагодарили: 0 раз.
Имя: Сергей
Автомобиль: Sorento BL, 2.5TD (14X л/с), TOD, AT
Год выпуска: 2003

Re: Установка Multitronics TC 750 в дорестайл (дизель)

Сообщение taualex » 23 дек 2012, 11:43

Такой же аппарат. Не подключается. Если победил, подскажи как.
taualex
 
 
Сообщения: 1
Зарегистрирован: 23 дек 2012, 11:36
Откуда: Екатеринбург
Благодарил (а): 0 раз.
Поблагодарили: 0 раз.
Имя: алексей
Автомобиль: Sorento BL, 2.5TD (14X л/с), TOD, AT
Год выпуска: 2002

Re: Установка Multitronics TC 750 в дорестайл (дизель)

Сообщение underwood » 13 ноя 2014, 11:46

Всем привет. У меня такая проблема. Подключил я бортовик через колодку под рулем . Показывает практически все кроме положения дроселя и напряжения на лямдал и остаток топлива. На форумах прочитал что нужно зезеный провод кинуть на датчик уровня с зади панели есть крайней левый разьем зеленый шестой провод. Сделал все как было сказано. После этого стал показывать конячий расход имено при торгуете пишет 500л на 100 км но при езде показатели опускаються до примерно15-25 л ну-и по помпу бак за 5 минут кончаетя но в процесс езды сам заправляеся до 125 л. если кто сможет помочь разобраться буду рад может я вообще не на тот провод кинул Провод от компа
underwood
 
 
Сообщения: 98
Зарегистрирован: 23 мар 2014, 00:04
Откуда: дзержинск
Благодарил (а): 0 раз.
Поблагодарили: 1 раз.
Имя: юрий
Автомобиль: Sorento BL, 2.5TD (170 л/с), TOD, AT
Год выпуска: 2007

Re: Установка Multitronics TC 750 в дорестайл (дизель)

Сообщение Селянин 2015 » 19 июл 2016, 16:48

Всем ПРИВЕТ! Наконец зарегистрировался на форуме.
Почитав всё на форуме по БК купил и поставил себе весной ТС750.... Но в итоге разочаровался более чем на 50% в этой приладе приобретённой в интернет-магазине :o
Практическая польза? ну только при обкатке двигателя контроль соблюдения режимов после капиталки... и то можно было более менее всё проконтролировать по родным приборам - обороты, скорость и температура ОЖ.... :x :x Ну плюс показывает расход и температура воздуха во впускном, расход топлива (в час, на 100, поездку), ну и прочая хрень типа время поездки- время езды, стоянки и прочая бестолковая инфа :evil:
Надеялся, что это "Чудо электроники" за 7110 рублёв (решил не гнаться за дешевками) будет показывать основной параметр для нашего двигателя, от которого все страдают - давление топлива в рейке! 8)
Хотя для дизеля SsangYong эти параметры, судя по описанию на сайте определяются, однако.
В настройках стоит так:
Настройки:
Источники:
Замок Физич.
Определение протокола OBD2Р
Тип OBD 2
Запром ошибок Авто
Тип дроселя 1
Скорость ЭБУ
Обороты ЭБУ
Расход ЭБУ

прошивка е2в от 2 февраля 2016.
Единственная ощутимая польза - проговаривание ошибок. И то, как то коряво расшифровывает: сперва постоянно вылетала ошибка давления фреона в А/С, оно и понятно - снимались радиаторы при капиталке двигателя ну и заодно для их прочистки. А вчера в лесу, после езды по лужам (за грибами) выскочила ошибка 1183 но без расшифровки. Обнулил - больше не вылетала но и перестала выскакивать ошибка по фреону :shock: ...

Пока так и не увидел на форуме, что у кого-нибудь Мультитроники показывают давление топлива. Надеюсь всё же производитель решит эту проблему.
Аватара пользователя
Селянин 2015
 
 
Сообщения: 55
Зарегистрирован: 19 июл 2016, 16:06
Откуда: НСО, Спиринская Рублёвка :)
Благодарил (а): 4 раз.
Поблагодарили: 7 раз.
Имя: Сергей
Автомобиль: Sorento BL, 2.5TD (14X л/с), TOD, AT
Год выпуска: 2006
Доп. информация: ЕГР ликвидирован с корнями, амморты KAYABA, Multitronics TC750.

БК Multitroniks - модная но безполезная вещь

Сообщение Селянин 2015 » 20 июл 2016, 17:25

Зимой когда мой Сорик впал в кому и я изучал тут весь форум, то прочитав о БК загорелся приобрести пусть не самый крутой но и не дешёвку, а более менее удобный по считыванию информации и с широкими возможностями. :)
Выбор встал на Multitroniks ТС-750. Уже Заканчивал капиталить двигатель и питал надежды на большое подспорье сего девайса при обкатке и дальнейшей эксплуатации авто...
Решил- купил в интернет-магазине за 7110руб. Прошивка свежая 2 февраля 2016г.
Поставил и помучившись неделю - пришёл к выводу, что эта беспонтовая дребедень не стоит этих денег и возлагаемых надежд владельцев Дизельных Сориков (за бензиновые не знаю).
И чем дальше тем больше это убеждение.
Да, работает... НО!!!!
Практически все параметры что хренатень (а по другому пока назвать язык не поворачивается) присутствуют на панели приборов,
За исключением - температуры воздуха во впускном коллекторе, напряжения на аккумуляторе (более-менее полезная инфа), расхода топлива на 100км или в час...
Прочая информация - время пробега, простоя, цена поездки и т.д. - информационный мусор, которым если и воспользуешься то чисто для развлекухи а то и реже...

Основная проблема и головная боль владельцев нашего авто - КИА Соренто, это - ДАВЛЕНИЕ ТОПЛИВА в системе !!!
И вовремя заметить падение давления для многих это избежать такой проблемы как ЗАГЛОХНУТЬ НА ХОДУ, НА ОБГОНЕ... а это согласитесь ЖИЗНЬ НАША И НАШИХ БЛИЗКИХ!!!!
А именно эту задачу эти разрекламированные на понтах (1000 определяемых параметров) Multitroniks ТС750 и не выполняет... Кроме этого он не расшифровал мне в дебрях бора (в поездке за грибами) выскочившую, после поездки по лужам ошибку 1183. Тупо назвал номер и ВСЁЁ!!! :evil: Так на Что выбрасывать 7000рублей?!
Я по честному написал в тех поддержку, но мне по Райкину в ответ "заслали дурочку"... привожу переписку ниже.

19 июля 2016 г., 20:16:45:
>>>> Здравствуйте, техподдержка.
>>>>>> Наименование изделия: ТС750
>>>>>> Версия / дата прошивки: е32В фев.2016 2
>>>>>> Марка автомобиля: КИА Соренто, дизель 2,5
>>>>>> Год выпуска: 2005
>>>>>> Тип ЭБУ: OBD2P
>>>>>> Протокол обмена: 2

>>>>>> ТС750 показывает только самые элементарные параметры - обороты,
>>>>>> скорость, температуру воздуха, ОЖ двигателя во впускном коллекторе,
>>>>>> расход воздуха, топлива, кол-во топлива в баке, напряжение батареи
>>>>>> ну и ещё несколько ... при этом практически все эти параметры
>>>>>> показывает панель приборов автомобиля.... в то время как интересуют
>>>>>> данные давления топлива в рейке , по форсункам и т.д. основные
>>>>>> проблемы в двигателях системы питания КоммонРейл, чтобы понять
>>>>>> причину незапуска двигателя или его остановки на ходу... К примеру
>>>>>> вы пишите для SangYong в перечне параметров эти данные есть... В
>>>>>> чём сложность по Соренто? при покупке вашего девайса был расчёт, что
>>>>>> он действительно будет полезен, т.кю КИА Соренто был указан на
>>>>>> коробке и в инструкции в списке авто для установки.... а так
>>>>>> получается ни чем не лучше дешевых китайских гаражных прилад за
>>>>>> 1000руб. при этом ценник не малый!

Ответ техподдержки:
>>>>> Список параметров, доступных в “Дисплеях параметров”, зависит от
>>>>> протокола, по которому МК работает
>>>>> на автомобиле. Наличие параметра в списке не означает, что он будет отображаться на всех
>>>>> автомобилях. Возможные варианты:
>>>>> 1. Параметр может быть прочитан в выбранном протоколе диагностики и поддерживается ЭБУ
>>>>> автомобиля. В этом случае он будет отображаться в “Дисплее параметров” и будет доступен при
>>>>> настройке мультидисплея.
>>>>> 2. Параметр может быть прочитан в выбранном протоколе диагностики, но не поддерживается ЭБУ
>>>>> автомобиля. В этом случае параметр будет доступен при настройке мультидисплея, но в “Дисплее
>>>>> параметров” он будет отображаться в виде нулевого значения или прочерков.
>>>>> 3. Параметр не поддерживается выбранным протоколом диагностики. В этом случае параметр не будет
>>>>> отображаться в “Дисплеях параметров”, в “Дисплеях установок” он также не будет доступен при
>>>>> настройке мультидисплея.
>>>>> 4. Некоторые параметры могут не показываться из-за медленного протокола обмена или особенности
>>>>> работы МК.

>>>>> С уважением,
>>>>> Служба технической поддержки mailto:support@multitronics.ru
>>>>> Multitronics http://www.multitronics.ru
>>>>> Если Вы хотите получать своевременные и корректные ответы,
>>>>> пожалуйста, сохраняйте предыдущую переписку.


Вопрос:
>>>> Зачем Вы мне прислали, то что у вас написано на сайте? В качестве отписки?
>>>> Ваш ТС750 выпускается не первый год.
>>>> Машин КИА Соренто бегает не многим менее чем прочих.

>>>> Говорите "протоколы" - ну так как вы разработчики, пусть ваши
>>>> программисты в очередном обновлении прошивки пропишут
>>>> соответствующие протоколы для дизельных Соренто!!! В чём проблема? Лень?
>>>> А иначе Ваши завления на упаковке и в инстукции с указанием, что
>>>> сей девайс "подходит" для КИА Соренто- просто ОБМАН ПОТРЕБИТЕЛЯ!!!

>>>> За что Вам тогда платить 7000 рублей, за бесполезную дребедень
>>>> дублирующую только элементарные параметры в основном отражаемые на приборной панели?
-----------------------------------------------------------
>>>>>> Отправитель: Сергей


Ответ техподдержки:

>>> Протокол обмена с соответствующими возможностями устанавливает в ЭБУ
>>> а/м производитель автомобиля. Наши БК могут многое, но если ЭБУ
>>> автомобиля по протоколу не выдает параметры, то за производителя
>>> переписать протокол мы не можем.

>>> С уважением,
>>> Служба технической поддержки mailto:support@multitronics.ru
>>> Multitronics http://www.multitronics.ru
>>> Если Вы хотите получать своевременные и корректные ответы,
>>> пожалуйста, сохраняйте предыдущую переписку.


ВОПРОС:
>> Извините, но не надо "включать дурочку" как говорил Аркадий Райкин.
>> На СТО сканером по ОБД2 все главные параметры (давление топлива в
>> рейке, давление и температура масла в двигателе и в коробке и т.д.)
>> считываются. Кроме этого ТС750 определил ошибку 1183 (сбой в цепи
>> датчика температуры масла (как понимаю АКПП) при этом БК только
>> назвал номер, но не расшифровал ошибку как вы ЗАЯВЛЯЕТЕ в
>> характеристиках БК) значит ЭБУ выдаёт соответствующие коды
>> информации - т.е. это в вашем БК нет нужного протокола для
>> распознания и расшифровки- пусть программисты исправят свои косяки!



Ответ техподдержки:
> Протокол у а/м медленный. Не позволяет считывать параметры
> одновременно.
> Считать то можно почти все, но по одному. Т.е. не будут считываться
> основные параметры, только один.


> С уважением,
> Служба технической поддержки mailto:support@multitronics.ru
> Multitronics http://www.multitronics.ru
> Если Вы хотите получать своевременные и корректные ответы,
> пожалуйста, сохраняйте предыдущую переписку.

ВОПРОС:
Извините, но вы что мне опять "включаете дурака"?!
Быстрый порт всегда пропустит медленный протокол- это сейчас даже детсадовцу известно.
Это как с каныгой - по трубе диаметром в 1,5метра может проплыть в минуту и 50 кубов фекалий и одна чья-то персональная... пусть медленно но в 1,5 метрах не застрянет... вот 10000 кубов может за минуту и не пройдут...
Так и с вашей темой! Нет разницы! Так что не надо мне пудрить мозги, а устраните косяки вашего программного обеспечения вашего РАЗРЕКЛАМИРОВАННОГО девайса!!! Работать надо, а не отписываться в расчёте на дураков!!!

Да, и вы не ответили - почему ваш девайс не расшифровал ошибку, которую он считал с ЭБУ?

Да, и ещё немного.
Почему тогда у ваших конкурентов давление топлива в рейке считывается?
Или всё же дело не в туфлях танцора, а в чём-то ещё?
Все работает проверено....в режиме диагностика выдает следующее...
Выдержка с форума KIA-club.ru

@Значения параметров
29 мар 2008, 15:57

Индикатор "Check Engine": Выключен
Сохраненных ошибок: 0
Обороты: 795 об/мин
Скорость: 0 км/ч
t° охлаждающей жидкости: 62 °С
t° воздуха впуска: 11 °С
Расход воздуха: 42,88 кг/ч
Величина нагрузки: 30,2 %
Давление во впускном коллекторе: 1,01 БАР
Пробег со включенным "Check Engine": 0 км
Давление топлива: 27910 кПа
EGR: 54,9 %
Коррекция EGR: -97 %
Количества запусков после сброса кодов ошибок: 255
Пробег после сброса кодов ошибок: 31544 км
Атмосферное давление воздуха: 102 кПа
Бортовое напряжение (на входе ECU): 14,35


Жду ответ. Но похоже им ВСЁ ПОХРЕН!!! Главное -ПРОДАЛИ!!!
Аватара пользователя
Селянин 2015
 
 
Сообщения: 55
Зарегистрирован: 19 июл 2016, 16:06
Откуда: НСО, Спиринская Рублёвка :)
Благодарил (а): 4 раз.
Поблагодарили: 7 раз.
Имя: Сергей
Автомобиль: Sorento BL, 2.5TD (14X л/с), TOD, AT
Год выпуска: 2006
Доп. информация: ЕГР ликвидирован с корнями, амморты KAYABA, Multitronics TC750.

Re: БК Multitroniks - модная но безполезная вещь

Сообщение Юджин » 20 июл 2016, 19:16

Мало того, тестирование ошибок в нём тоже весьма косячное, ибо если OBDII выплюнул ошибку, причину её по Мультику не определишь (это - главный косяк прибора, на мой взгляд. На одной моей машинке он выдаёт, к примеру, "Богатая смесь по блоку цилиндров 1" или "2", а по факту неисправен ДМРВ. От Мультика этого не дождёшься). Не жди ответ из Зеленограда, настрой Мультик на на остаток топлива; в режиме "Дисплей пользователя" выставь напряжение на батарее и скорость (она точнее, чем по спидометру), и наслаждайся жизнью...
Юджин
 
 
Сообщения: 9531
Зарегистрирован: 02 май 2008, 09:02
Благодарил (а): 21 раз.
Поблагодарили: 832 раз.
Имя: Евгений
Автомобиль: Другая машина
Год выпуска: 2017

Re: БК Multitroniks - модная но безполезная вещь

Сообщение Селянин 2015 » 20 июл 2016, 20:47

Пока ответили, что Голосом расшифровывается около 500 наиболее часто встречающихся
ошибок. В ответ попросил публично огласить список - дать ссылку где он.
Ну попросили не быть голословным и дать ссылку на Check Engine - дал на страницу с форума. :D
Аватара пользователя
Селянин 2015
 
 
Сообщения: 55
Зарегистрирован: 19 июл 2016, 16:06
Откуда: НСО, Спиринская Рублёвка :)
Благодарил (а): 4 раз.
Поблагодарили: 7 раз.
Имя: Сергей
Автомобиль: Sorento BL, 2.5TD (14X л/с), TOD, AT
Год выпуска: 2006
Доп. информация: ЕГР ликвидирован с корнями, амморты KAYABA, Multitronics TC750.

Re: БК Multitroniks - модная но безполезная вещь

Сообщение Юджин » 20 июл 2016, 22:10

Селянин 2015
Да расшифровывает он голосом! Женским, приятным. Но информация (как я выше писал): "Ошибки системы! Ошибка сто семьдесят два! Чрезмерно богатая смесь в первой группе цилиндров!" о многом тебе скажет? Причин для этого - миллион. И - самое поганое - что не только в тайге, но и в центре Москвы тебе эта информация - абсолютно ни о чём. А интересно знать - можно эксплуатировать авто с этой бедой? Что конкретно вышло из строя? Где и куда копать? Какие параметры ещё проверить?
В сервисе, подключив сканер на Андроиде, кстати, в обычном смартфоне, мне через десять минут сканирования всего и вся дадут ответ, что делать. Мультитроникс - некий усреднённый, универсальный прибор "обо всём, и ни о чём", как часы с калькулятором: вроде уже и не только часы, но и не калькулятор.
Юджин
 
 
Сообщения: 9531
Зарегистрирован: 02 май 2008, 09:02
Благодарил (а): 21 раз.
Поблагодарили: 832 раз.
Имя: Евгений
Автомобиль: Другая машина
Год выпуска: 2017

Re: Установка Multitronics TC 750 в дорестайл (дизель)

Сообщение Nikolay0812 » 20 июл 2016, 22:23

Селянин 2015
 Замечание от модератора: Nikolay0812
Перед созданием новой темы-пользуемся поиском.
На основании п.7 и п.9 Правил форума ,тему объединил с профильной.
Аватара пользователя
Nikolay0812
 
Модератор
 
Сообщения: 12679
Зарегистрирован: 06 июл 2007, 19:08
Откуда: Саратов
Благодарил (а): 886 раз.
Поблагодарили: 1315 раз.
Имя: Николай
Автомобиль: Sorento BL, 2.5TD (170 л/с), TOD, AT
Год выпуска: 2008
Доп. информация: черный 2VIN в топе.Пружины H&R.Бинар5Д.SuperTOD от BlkDem.
6,5лет-был "кореец" 2002г.в

Re: Установка Multitronics TC 750 в дорестайл (дизель)

Сообщение Селянин 2015 » 20 июл 2016, 22:28

Совершенно согласен! Меня бесит, что производитель даже на своём сайте не даёт конкретики - на какой модели Авто что их приблуда кажет!!! Ну ладно на коробке нет места и инструкцию в ней с размер БСЭ не вложишь... но ПИЛЯТЬ!!! на сайте то можно!!! И люди не будут потом матом крыть за никчёмное гуано!!! Бесит этот чисто русский бизнес с пиндосскими корнями - ради денег нае.ать хоть кого-нибудь!!! :evil:
Поражает, что народ тащится от цифирек расхода, пробега и оборотов но не требует главных параметров из-за которых может попасть неожиданно в катафалк!

Добавлено через 4 минуты 47 секунд:
Nikolay0812 писал(а):Селянин 2015
NON Moderator
Перед созданием новой темы-пользуемся поиском.
На основании п.7 и п.9 Правил форума ,тему объединил с профильной.


Может Вы и правы! Хотя в чужой суть в процедуре установки, а у меня вообще о смысле?... Хотя...

Добавлено через 14 часов 40 минут 43 секунды:
Итак свежая "дурочка" от техподдержки :D

Техподдержка:
>>> Голосом расшифровывается около 500 наиболее часто встречающихся
>>> ошибок.

>>> С уважением,
>>> Служба технической поддержки mailto:support@multitronics.ru
>>> Multitronics


Вопрос:
>> Список где опубликован? Конкретно.


Техподдержка:
> Списка нет. :lol: :lol: :lol:


Вопрос:
:o как нет?!!! ПОЧЕМУ?!!! Вы что продаёте ВАМ (!!!) неизвестно что делающую хренатень?
Вы что, обалдели?
Вы обязаны как производители знать все характеристики!
У вас что нет конструкторско-технической документации?
Как вам тогда эту штуку с кнопками сертифицировали?
И сразу вопрос - как вы защитили авторские права?!!!!
Вы даже не знаете что у вас защищено?!!!
Оба на :)) Как это интересно!!! щас посмотрим, что вы там назащищали :-) поди как все "хитренькие" - одну позицию!!! :))

Ещё в другом письме:

техподдержка:
>> Тема: Check-engine для дизеля!

> Список параметров для а/м 2007-2011 годов выпуска. Эти а/м
> поддерживают протокол CAN, по этому протоколу совсем другие
> возможности, чем по OBD2.

> http://www.check-engine.ru/cars.php?lis ... &carid=171

> С уважением,
> Служба технической поддержки mailto:support@multitronics.ru
> Multitronics

Вопрос:
И что вы опять дурочку присылаете?
Вы девайс свой как позиционируете и рекламируете?
На сайте вашем, что написано о КИА СОРЕНТО? Только с 2007 года? Или нет?!
И какое подсоединение для дизелей до 2007г указано?
Вот именно - OBD2 !!!!
Вот и делайте, чтобы ваша коробка с проводами за 7000 рупий читала, то что читают даже дешевые гаражно-коопереративные КОМПЬЮТОРЫ! по тому же OBD2!

Добавлено через 40 минут 1 секунду:
Похоже техподдержке нечего сказать и они становятся в позицию "обиженной девочки".
А это заставляет задуматься о позиции этой конторы по отношению к покупателям.

Техподдержка:
> Я не буду в таком ключе больше общаться с Вами. Не вижу смысла.
> Если у Вас старый а/м с поддержкой старого протокола, то и возможности
> ЭБУ а/м (а не БК соответствующие).
> По ссылке, которую Вы мне прислали, речь идет о рестайлинговых а/м.

> С уважением,
> Служба технической поддержки mailto:support@multitronics.ru
> Multitronics

Вопрос:
В каком тоне? Ни какой нецензурной лексики - всё литературным языком!
Тон соответствующий вашим ответам!
Посмотрите лучше Аркадия Райкина - именно о вашей переписке! "Запустим дурочку!"

А относительно "старый-новый" Вас что нужно ткнуть носом в любое программное обеспечение?! Вы где видели компьютер с операционкой не читающей старые форматы?!
Любая новая программа - открывает любой старый формат!!!
Так что не надо становиться в позицию обиженного и надувать губы!
А лучше исправьте свои косяки в программе!

:D Достала меня эта шаражка! :crazy: :D

Добавлено через 1 день 18 часов 33 минуты 13 секунд:
Ну вот вроде как пошла конкретика- пришел такой ответ.
Техподдержка:
>> Установите расширенную прошивку. В ней в дисплее ТО есть доп.
>> параметры. При считывания доп. параметра считывание основных
>> параметров отключается.
>> Количество считываемых параметров зависит от протокола и
>> информативности ЭБУ.
>> С уважением,
>> Служба технической поддержки mailto:support@multitronics.ru
>> Multitronics

Вопрос:
> Да! Кстати какую конкретно имеете в виду? Уточните как
> специалист... Чтобы не перебирать все?

Техподдержка:
Любую версию из е32ВХХХ, они все содержат расширенные параметры для OBD2.
Аватара пользователя
Селянин 2015
 
 
Сообщения: 55
Зарегистрирован: 19 июл 2016, 16:06
Откуда: НСО, Спиринская Рублёвка :)
Благодарил (а): 4 раз.
Поблагодарили: 7 раз.
Имя: Сергей
Автомобиль: Sorento BL, 2.5TD (14X л/с), TOD, AT
Год выпуска: 2006
Доп. информация: ЕГР ликвидирован с корнями, амморты KAYABA, Multitronics TC750.

Re: Установка Multitronics TC 750 в дорестайл (дизель)

Сообщение Селянин 2015 » 02 авг 2016, 10:22

Продолжаем эпопею.
Итак маленько освободился и закачал по совету техподдержки прошивку е32Ва...
Ну и толку?!!!
Да НИ КАКОГО!!!
Всё та же бесполезная для Соренто ДРЕБЕДЕНЬ!!! - в доп. функциях небольшая куча опций но для Автотазов и УАЗов и для 5-6 иномарок типа Форд, тойота и СангЙонга... :evil:
Аватара пользователя
Селянин 2015
 
 
Сообщения: 55
Зарегистрирован: 19 июл 2016, 16:06
Откуда: НСО, Спиринская Рублёвка :)
Благодарил (а): 4 раз.
Поблагодарили: 7 раз.
Имя: Сергей
Автомобиль: Sorento BL, 2.5TD (14X л/с), TOD, AT
Год выпуска: 2006
Доп. информация: ЕГР ликвидирован с корнями, амморты KAYABA, Multitronics TC750.

Пред.След.

Вернуться в Бортовые (маршрутные) компьютеры

Кто сейчас на конференции

Сейчас этот форум просматривают: нет зарегистрированных пользователей и гости: 4