Изменение логики работы стеклоочистителя после ....

Особенности устройства и эксплуатации электрической части автомобилей KIA SORENTO XM (2009MY)

Изменение логики работы стеклоочистителя после ....

Сообщение AndNNNNN » 17 окт 2020, 10:45

.... замены моторчика бочка омывателя.

Добрый день.

Заголовок ограничен числом знаков, посему перенес мысль в текст поста.

Поменял моторчик подачи омывающей жидкости по кончине предыдущего.
Меняли в клубном сервисе, моторчик предоставлен ими.

После замены:
1. Вода подается на лобовое, стеклоочистители чистят.
2. Вместе с работой передних стеклоочистителей начинает работать задняя щетка.
3. Вода при этом на заднее стекло не подается.
4. При подаче воды на заднее стекло вода не идет.

При написании поста осознаю, что не фиксировал работу/состояние покоя задней щетки при работающих передних стеклоочистителей в дождь без подачи воды на лобовое из бочка.

Понимаю, что при подаче на лобовое задняя щетка работать не должна.
Но и изменение логики по причине замены моторчика заставила залипнуть на пару дней.

Вопрос - что можно придумать?

Иного моторчика на подмену нет.

Но и во влияние моторчика на логику верю с трудом.
AndNNNNN
 
 
Сообщения: 30
Зарегистрирован: 11 сен 2012, 09:14
Откуда: Москва
Благодарил (а): 1 раз.
Поблагодарили: 3 раз.
Имя: Андрей
Автомобиль: Sorento XM, 2.2TD (197 л/с), 4WD, AT
Год выпуска: 2011

Re: Изменение логики работы стеклоочистителя после ....

Сообщение ...Михалыч! » 17 окт 2020, 19:11

AndNNNNN писал(а):
Поменял моторчик подачи омывающей жидкости по кончине предыдущего.
Меняли в клубном сервисе, моторчик предоставлен ими.

камасутра какая то...может есть смысл задать вопрос там, где меняли моторчик...
Аватара пользователя
...Михалыч!
 
 
Сообщения: 1633
Зарегистрирован: 08 дек 2014, 13:45
Откуда: Минск
Благодарил (а): 392 раз.
Поблагодарили: 128 раз.
Имя: Георгий
Автомобиль: Sorento XM, 2.2TD (197 л/с), 4WD, AT
Год выпуска: 2011
Доп. информация: (было-68,5ткм, сейчас-360ткм),Valvoline SynPower 5w-40

Re: Изменение логики работы стеклоочистителя после ....

Сообщение Yugin » 17 окт 2020, 19:39

AndNNNNN писал(а):Но и изменение логики по причине замены моторчика заставила залипнуть на пару дней.


Больше .
Два контакта - два провода же на моторчике . И вдруг он оброс нанотехнологиями .

А не банально ли это переключатель еще умер ?
Аватара пользователя
Yugin
 
 
Сообщения: 463
Зарегистрирован: 10 май 2014, 16:18
Откуда: Химки
Благодарил (а): 14 раз.
Поблагодарили: 50 раз.
Имя: Евгений
Автомобиль: Sorento XM, 2.4 (174 л/с), 4WD, AT
Год выпуска: 2013

Re: Изменение логики работы стеклоочистителя после ....

Сообщение AndNNNNN » 17 окт 2020, 20:33

Yugin писал(а):
AndNNNNN писал(а):Но и изменение логики по причине замены моторчика заставила залипнуть на пару дней.


Больше .
Два контакта - два провода же на моторчике . И вдруг он оброс нанотехнологиями .

А не банально ли это переключатель еще умер ?


Три провода.
Ноль.
Переднее стекло
Заднее стекло.

Добавлено через 1 минуту 4 секунды:
...Михалыч! писал(а):камасутра какая то...может есть смысл задать вопрос там, где меняли моторчик...


Задал.
Наши состояния схожи....
AndNNNNN
 
 
Сообщения: 30
Зарегистрирован: 11 сен 2012, 09:14
Откуда: Москва
Благодарил (а): 1 раз.
Поблагодарили: 3 раз.
Имя: Андрей
Автомобиль: Sorento XM, 2.2TD (197 л/с), 4WD, AT
Год выпуска: 2011

Re: Изменение логики работы стеклоочистителя после ....

Сообщение ...Михалыч! » 18 окт 2020, 00:19

AndNNNNN писал(а):
Задал.
Наши состояния схожи....

И? (что ответили в клубном сервисе)
а логика работы насоса(заднего дворника) изменилась сразу после установки?
Аватара пользователя
...Михалыч!
 
 
Сообщения: 1633
Зарегистрирован: 08 дек 2014, 13:45
Откуда: Минск
Благодарил (а): 392 раз.
Поблагодарили: 128 раз.
Имя: Георгий
Автомобиль: Sorento XM, 2.2TD (197 л/с), 4WD, AT
Год выпуска: 2011
Доп. информация: (было-68,5ткм, сейчас-360ткм),Valvoline SynPower 5w-40

Re: Изменение логики работы стеклоочистителя после ....

Сообщение AndNNNNN » 18 окт 2020, 21:13

...Михалыч! писал(а):
AndNNNNN писал(а):
Задал.
Наши состояния схожи....

И? (что ответили в клубном сервисе)
а логика работы насоса(заднего дворника) изменилась сразу после установки?


1. Надо прозванивать тестером. Вот их мнение.
2. Я не пользуюсь ни задним дворником, ни омывателем заднего стекла. Посему на вопрос "когда" ответ не дам.
Вижу сбой в логике. Посему и пишу.

"ГДЕ ИСКАТЬ" - вот соль обращения к людям.
AndNNNNN
 
 
Сообщения: 30
Зарегистрирован: 11 сен 2012, 09:14
Откуда: Москва
Благодарил (а): 1 раз.
Поблагодарили: 3 раз.
Имя: Андрей
Автомобиль: Sorento XM, 2.2TD (197 л/с), 4WD, AT
Год выпуска: 2011

Re: Изменение логики работы стеклоочистителя после ....

Сообщение Yugin » 18 окт 2020, 21:15

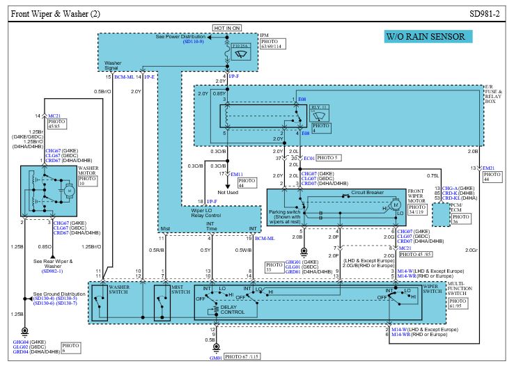
Мотор омывателя один на перед и на зад ?

И на мотор одевается фишка с тремя контактами ?

По-моему надо контакты местами переставить .

№ 2 должен быть массой .



AndNNNNN писал(а):Меняли в клубном сервисе, моторчик предоставлен ими.


AndNNNNN писал(а):ГДЕ ИСКАТЬ" - вот соль обращения к людям.


Они моторчик неоригинал же поставили , и началась мистика .
Вложения
3.JPG
2.JPG
1.JPG
Аватара пользователя
Yugin
 
 
Сообщения: 463
Зарегистрирован: 10 май 2014, 16:18
Откуда: Химки
Благодарил (а): 14 раз.
Поблагодарили: 50 раз.
Имя: Евгений
Автомобиль: Sorento XM, 2.4 (174 л/с), 4WD, AT
Год выпуска: 2013


Вернуться в Электрика и электроника (XM)

Кто сейчас на конференции

Сейчас этот форум просматривают: нет зарегистрированных пользователей и гости: 3