
Скандалы,интриги ,расследования
Блин, сколько комаров! Кто накаркал???
nort писал(а):Поддрежу Владимира. Сделай армированный верхний пояс связанный с основным домом - и все будет стоять.

nort писал(а):Bob's Оказывается еще и строитель![]()

Подумаешь,крыша поехала
Всё бы ничего,но у меня там с магазина ещё товара до.... Пусть сама распихивает по углам.
[user]Bob's[/user] писал(а):Нет Дим ты меня не совсем понял. Армопояс это армопояс- это стены, а обвязка- это часть стропильной системы, это уже крыша. Армопояс для того чтоб стены равномерно давили на фундамент, и тянули друг друга. Он конечно же нужен но для стен. А обвязка для того чтоб стропила равномерно давили на стены, и не разъехались по отношению друг к другу.


[user]Bob's[/user] писал(а):И не надо подкалывать, с 13 до 18 лет работал на малоэтажном строительстве

nort писал(а):просто к тебе будет больше вопросов при встрече
И ни в чем не виноват.
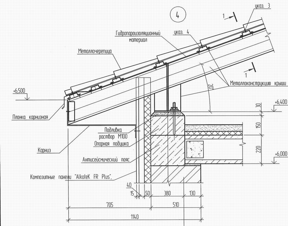
А вот на картинке не очень хорошо но видно все что я описывал, и армопояс, и стяжку по верху стен, и обвязку, от нее идет стрелка "металлоконструкция крыши"(та что горизонтальнее идет, а вверх это стропила с обрешеткой). Просто это металлическая крыша. Да и в принципе научно ничто там не разделяют просто стропильная система и все.
Достало уже отрываться от производства. До сих пор с опалубкой вожусь. Три часа вылетели сегодня. Пока на дачу к маме съездили,лоходильник взяли попользоваться. И так постоянно.


Делаем ставки ? я считаю что 3:1 победит Бразилия.
Я пока арматуру вязал,ей от них и отмахивался
Сегодня отсыпал до конца и утрамбовал песочную подушку. Собрал и провёл пробный пуск смешалки,начал вязать арматуру. На завтра осталось настелить в яму плёнку, докончить вязку,и начнёться заливка. Кстати я неправильно посчитал объём бетона. Не 4‚5 а 7‚7 )))

Единственная доработка-это барабан на соединении двух половинок промазал герметиком. Прокладка прокладкой,а так надёжней 

Вернуться в Клуб (Новосибирск)
Сейчас этот форум просматривают: нет зарегистрированных пользователей и гости: 3