Строю баньку)

Делимся опытом, описываем сделанное своими руками. Автомобильное рукоделие размещается в других разделах!

Re: Строю баньку)

Сообщение Илья_85 » 04 мар 2016, 11:25

bog13bog писал(а):Я так понимаю, фундамент свайный будет.

Я бы даже сказал есть! Водоотвод будет в септик/колодец недалеко от дома. Разумеется, всё придётся утеплять.
bog13bog писал(а):На схеме печку не нашел, она где планируется?

Топочная будет из "гостиной". Там под печь специально усиление фундамента делал. Но работяги сказали что если у тебя печь будет до 500 кг - нафиг не нужно
усиление, и обычные лаги вывезут... Вот думаю теперь, заливать площадку и ну его нафиг...
bog13bog писал(а):Единственный минус у оцилиндрованного бревна, у него самый хороший и прочный слой древсины сточен, я бы посовтовал все же пропитать бревно, что бы и влагу не впитывало не темнело, причем желательно чем быстрее, тем лучше.

Насчёт хорошего прочного слоя, который снят у ОЦБ - возможно. Но на мой взгляд с нынешним кол-вом разнообразных пропиток этим можно легко пренебречь!
Обработаю антисептиком как только температура поднимется выше 10-15 С. И торцы закрашу, чтобы трескались чуть поменьше.
И сейчас всё чаще и чаще строят из древесины естественной влажности. Но если сруб готовят заранее прямо под тебя - то да, можно попробовать неверное и отстоявшийся замутить, только долго ждать придётся...
bog13bog писал(а):А внутрянку как отделывать будешь?

Честно говоря кроме парилки ничего отделывать не планирую, смысл бревна иначе теряется.
bog13bog писал(а):Я тоже подбираю вариант баня - дом, мне много не надо.

С балконами и ломаной крышей домик начинает совсем по другому смотреться, имхо.
Другое дело - это всё влечёт за собой дополнительные траты. Т.к. терраску и балкончик по-любому нужно будет застеклять. Сама стропилка дороже, нежели у обычной двухскатной и пр. пр...
В любом случае удачи в этом не лёгком деле, готовь нервы, деньги и... что-нибудь ещё, можно бухло :D
bog13bog писал(а):Удачи.

Спасибо.
Илья_85
 
 
Сообщения: 356
Зарегистрирован: 05 фев 2014, 19:28
Откуда: Москва
Благодарил (а): 4 раз.
Поблагодарили: 5 раз.
Имя: Илья
Автомобиль: Другая машина
Год выпуска: 2008
Доп. информация: Subaru Tribeca.

Re: Строю баньку)

Сообщение Kucher » 04 мар 2016, 14:45

красиво из оцилиндровки выходит но ох трещать будет. И тут уже пропитка не поможет надо будет заделывать а заделка трещит бабла стоит очень много, все таки сруб так не трещит.
Изображение
Аватара пользователя
Kucher
 
 
Сообщения: 2423
Зарегистрирован: 28 апр 2011, 14:31
Откуда: Москва
Благодарил (а): 123 раз.
Поблагодарили: 355 раз.
Имя: Алексей
Автомобиль: Sorento BL, 2.5TD (170 л/с), Part-Time, AT
Год выпуска: 2007

Re: Строю баньку)

Сообщение bog13bog » 04 мар 2016, 16:00

Kucher писал(а): надо будет заделывать а заделка трещит бабла стоит

Подробнее можо, почему будет трещать, и как и чем заделывать?
bog13bog
 
 
Сообщения: 6040
Зарегистрирован: 19 дек 2009, 20:12
Откуда: Санкт-Петербург
Благодарил (а): 32 раз.
Поблагодарили: 558 раз.
Имя: Владимир
Автомобиль: Sorento BL, 2.5TD (170 л/с), TOD, AT
Год выпуска: 2005
Доп. информация: Кореец, limited.ну очень классный, Тойота Venza

Re: Строю баньку)

Сообщение Kucher » 04 мар 2016, 16:08

bog13bog писал(а):Подробнее можо, почему будет трещать, и как и чем заделывать?

Потому что древо рассыхается. Вот тут почитай много написано. http://www.baniclub.ru/threads/2347/
Изображение
Аватара пользователя
Kucher
 
 
Сообщения: 2423
Зарегистрирован: 28 апр 2011, 14:31
Откуда: Москва
Благодарил (а): 123 раз.
Поблагодарили: 355 раз.
Имя: Алексей
Автомобиль: Sorento BL, 2.5TD (170 л/с), Part-Time, AT
Год выпуска: 2007

Re: Строю баньку)

Сообщение Илья_85 » 04 мар 2016, 17:08

Kucher писал(а):красиво из оцилиндровки выходит но ох трещать будет. И тут уже пропитка не поможет надо будет заделывать а заделка трещит бабла стоит очень много, все таки сруб так не трещит.

Честно говоря не очень понимаю зачем заделывать трещины?
Обработал от гниения, и пускай себе стоят дальше...
И опять же...Сруб срубу рознь;)
Илья_85
 
 
Сообщения: 356
Зарегистрирован: 05 фев 2014, 19:28
Откуда: Москва
Благодарил (а): 4 раз.
Поблагодарили: 5 раз.
Имя: Илья
Автомобиль: Другая машина
Год выпуска: 2008
Доп. информация: Subaru Tribeca.

Re: Строю баньку)

Сообщение Kucher » 04 мар 2016, 18:01

Илья_85 писал(а):Честно говоря не очень понимаю зачем заделывать трещины?
Обработал от гниения, и пускай себе стоят дальше...
И опять же...Сруб срубу рознь;)

Интересно как ты в трещины будешь антисептик заливать) А так то конечно у каждого своя голова на плечах)))
Изображение
Аватара пользователя
Kucher
 
 
Сообщения: 2423
Зарегистрирован: 28 апр 2011, 14:31
Откуда: Москва
Благодарил (а): 123 раз.
Поблагодарили: 355 раз.
Имя: Алексей
Автомобиль: Sorento BL, 2.5TD (170 л/с), Part-Time, AT
Год выпуска: 2007

Re: Строю баньку)

Сообщение Илья_85 » 04 мар 2016, 18:07

Kucher писал(а):Интересно как ты в трещины будешь антисептик заливать)

Садовым распылителем типа "Жук"! :D
Ну а вообще, конечно, всё зависит от трещин. Но герметик меня категорически не устраивает.. Выглядит, на мой опять же взгляд, ну ооочень не очень. Даже когда свежий. Короче, самое интересное меня ещё ожидает. :evil:
Ладно, я чую с такой погодой для сборки трещины - не самая большая беда, способная упасть мне на голову... :o
Илья_85
 
 
Сообщения: 356
Зарегистрирован: 05 фев 2014, 19:28
Откуда: Москва
Благодарил (а): 4 раз.
Поблагодарили: 5 раз.
Имя: Илья
Автомобиль: Другая машина
Год выпуска: 2008
Доп. информация: Subaru Tribeca.

Re: Строю баньку)

Сообщение Kucher » 29 июл 2016, 15:54

Все достроил) С третьей топки сходила вся семья в парилку, понравилась влажность, к сожалению пока не прикупил термометр и гидрометр, но по виду очень хорошая влажность в парной. К сожалению сапоженик без сапог, пока врач зубной запретил париться)))
Изображение
Аватара пользователя
Kucher
 
 
Сообщения: 2423
Зарегистрирован: 28 апр 2011, 14:31
Откуда: Москва
Благодарил (а): 123 раз.
Поблагодарили: 355 раз.
Имя: Алексей
Автомобиль: Sorento BL, 2.5TD (170 л/с), Part-Time, AT
Год выпуска: 2007

Re: Строю баньку)

Сообщение Kucher » 04 окт 2017, 13:01

Ну что ж в общем керамический дымоход подложил мне свинью. Слава богу все закончилось хорошо. Но могло и очень печально закончится. Через 2 слоя минерита и спецваты задымилась стена. Сейчас полностью переделал дымоход пригласил печника и сделал из кирпича. Все таки керамика не для банных печей. Фото новой трубы выложу попозже.
Изображение
Аватара пользователя
Kucher
 
 
Сообщения: 2423
Зарегистрирован: 28 апр 2011, 14:31
Откуда: Москва
Благодарил (а): 123 раз.
Поблагодарили: 355 раз.
Имя: Алексей
Автомобиль: Sorento BL, 2.5TD (170 л/с), Part-Time, AT
Год выпуска: 2007

Re: Строю баньку)

Сообщение chaos » 09 ноя 2017, 11:53

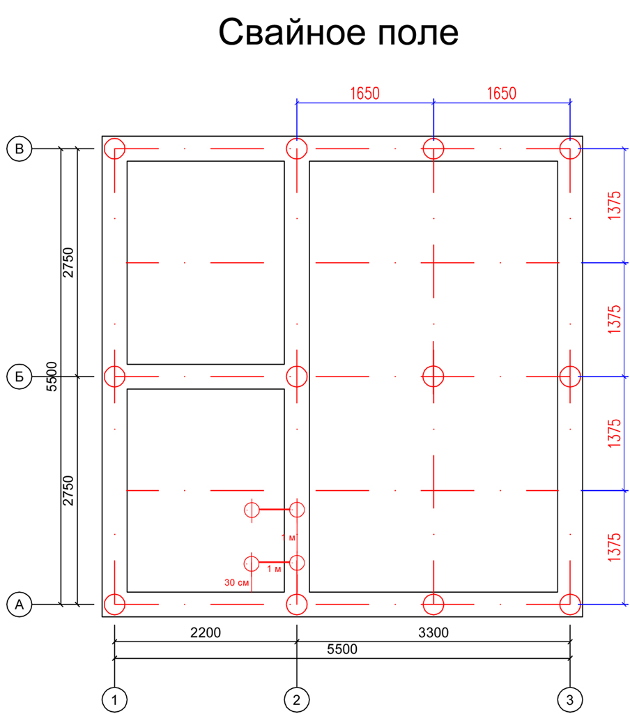
Дабы не плодить темы, спрошу здесь. Кто-нибудь строил баню на свайном фундаменте? На выходных планирую вкрутить фундамент, в связи с этим возник вопрос. Мне тут сказали, что под печку тоже нужно вкурчивать, дабы пол не провалился. Так вот в чем вопрос, надо ли и как правильно это сделать? Приложил свайное поле, если кто сможет подсказать чего-нить толкового, буду очень благодарен! Предаврительно разместил сваи под печь на оси 2

Свайное поле4.jpg
Серая тарахтелка 2.2 Premium
Megane Extreme 1,6 АТ (серое затмение)
Аватара пользователя
chaos
 
 
Сообщения: 1187
Зарегистрирован: 12 фев 2012, 16:22
Откуда: Mos-Vegas, Теплый край
Благодарил (а): 12 раз.
Поблагодарили: 13 раз.
Имя: Артём
Автомобиль: Sorento UM, 2.2TD (200 л/с), 4WD, AT, 7 мест
Год выпуска: 2018

Re: Строю баньку)

Сообщение rotenflecke » 09 ноя 2017, 12:18

chaos писал(а):под печку

сколько вес печки с камнями? )) и какой пол?

так под каждую кровать получится свою сваю крутить )

я в доме выводил под печь отдельный фундамент, но он не понадобился - поставил булерьян вместо кирпичной печи, сейчас думаю чем обкладывать )
возмутитель и мальчиш-плохиш
Аватара пользователя
rotenflecke
 
 
Сообщения: 13272
Зарегистрирован: 16 янв 2009, 11:11
Откуда: Москва-центр
Благодарил (а): 2 раз.
Поблагодарили: 366 раз.
Имя: Артемий
Автомобиль: Другая машина
Год выпуска: 2017
Доп. информация: Santa 2.2 high-tech, были - Santa Fe 2.2 Dynamic 2014, Sorento 2.4 2010, Sorento 2,5D 2002

Re: Строю баньку)

Сообщение chaos » 09 ноя 2017, 12:25

rotenflecke писал(а):
chaos писал(а):под печку

сколько вес печки с камнями? )) и какой пол?

так под каждую кровать получится свою сваю крутить )

я в доме выводил под печь отдельный фундамент, но он не понадобился - поставил булерьян вместо кирпичной печи, сейчас думаю чем обкладывать )

Точно не могу сказать, печь еще не выбирал. Парилка 2.2х2.75, 5.15 кв. м.
Серая тарахтелка 2.2 Premium
Megane Extreme 1,6 АТ (серое затмение)
Аватара пользователя
chaos
 
 
Сообщения: 1187
Зарегистрирован: 12 фев 2012, 16:22
Откуда: Mos-Vegas, Теплый край
Благодарил (а): 12 раз.
Поблагодарили: 13 раз.
Имя: Артём
Автомобиль: Sorento UM, 2.2TD (200 л/с), 4WD, AT, 7 мест
Год выпуска: 2018

Re: Строю баньку)

Сообщение rotenflecke » 09 ноя 2017, 12:27

chaos писал(а):печь еще не выбирал

ну средние каменки примерно 200 кило камней. это как кровать с двумя людьми ) пол какой? под печкой усиление кирпичем не будешь делать?
стенку соляную ставить не будешь?
возмутитель и мальчиш-плохиш
Аватара пользователя
rotenflecke
 
 
Сообщения: 13272
Зарегистрирован: 16 янв 2009, 11:11
Откуда: Москва-центр
Благодарил (а): 2 раз.
Поблагодарили: 366 раз.
Имя: Артемий
Автомобиль: Другая машина
Год выпуска: 2017
Доп. информация: Santa 2.2 high-tech, были - Santa Fe 2.2 Dynamic 2014, Sorento 2.4 2010, Sorento 2,5D 2002

Re: Строю баньку)

Сообщение bog13bog » 09 ноя 2017, 13:05

Так или иначе общаясь с клиентами и соответственно с печниками, они все говорят в один голос, под печку фундамент обязателен.
Последнюю проблему решали недавно во Пскове, хозяйка решила с экономить, а печник, скорее халтурщик сократил рабочее время... :evil:
Несмотря на несущие бусья и доску 50 печь, правда в доме, просела через 2 года, хорошо успели вовремя. Была возможность подвести балки и танковыми домкратами вывели в "0" и залили фундамент.
Народ уже отписывался в других темах и я поддержу, свайный фундамент, лучше всего "связать" стольным уголком не менее 4-ки, либо металлический профиль.
Все будет зависить от печки и каменки, так как в среднем береться 35-45 кг камней на метр кубический, это при использовании парилки 6-8 часов, дальше получаешь вес и нагрузку на сваи.
Вполне возможно под твою печь поставить 4 сваи, либо 3 задействовав основную и сделать площадку-решетку из металлопрофиля.
Опять же не забудь, помещение сырое, лет через несколько полюбасу менять пол, а как ты будешь это делать если печь, труба и дымоход, будут завязаны на основной пол.... :oops: Всё будешь разбирать :cry:
bog13bog
 
 
Сообщения: 6040
Зарегистрирован: 19 дек 2009, 20:12
Откуда: Санкт-Петербург
Благодарил (а): 32 раз.
Поблагодарили: 558 раз.
Имя: Владимир
Автомобиль: Sorento BL, 2.5TD (170 л/с), TOD, AT
Год выпуска: 2005
Доп. информация: Кореец, limited.ну очень классный, Тойота Venza

Re: Строю баньку)

Сообщение rotenflecke » 09 ноя 2017, 13:08

bog13bog писал(а):полюбасу менять пол

это если пол сплошной. 8) нормальный проветриваемый пол может 50 лет прослужить, если под парилкой нормально все с дренажом а в самой парилке - с вентиляцией

Добавлено через 1 минуту 1 секунду:
bog13bog писал(а):35-45 кг камней на метр кубический

ну это для хорошей русской баньки, для нее и парилка нужна поболе )
возмутитель и мальчиш-плохиш
Аватара пользователя
rotenflecke
 
 
Сообщения: 13272
Зарегистрирован: 16 янв 2009, 11:11
Откуда: Москва-центр
Благодарил (а): 2 раз.
Поблагодарили: 366 раз.
Имя: Артемий
Автомобиль: Другая машина
Год выпуска: 2017
Доп. информация: Santa 2.2 high-tech, были - Santa Fe 2.2 Dynamic 2014, Sorento 2.4 2010, Sorento 2,5D 2002

Пред.След.

Вернуться в Квартира, дача, гараж

Кто сейчас на конференции

Сейчас этот форум просматривают: нет зарегистрированных пользователей и гости: 2