Ищу проект бани.

Делимся опытом, описываем сделанное своими руками. Автомобильное рукоделие размещается в других разделах!

Re: Ищу проект бани.

Сообщение Gads » 26 авг 2013, 16:48

Евген81 писал(а):Намана?

мойку забыл. после туалета или таранки где руки мыть будешь? или будешь в каждый раз душ принимать? :D
а вообще, я согласен с Артемием
rotenflecke писал(а):увеличивай размеры раза в полтора

кроме этого, родители не молодеют и со временем им будет тяжело подниматься на второй этаж. :wink:
Напрасно думают, что мудрость - это привилегия старости. M чудак с возрастом не становится мудрецом, он становится старым м чудаком.
Аватара пользователя
Gads
 
Модератор
 
Сообщения: 14493
Зарегистрирован: 05 окт 2009, 20:54
Откуда: Москва
Благодарил (а): 270 раз.
Поблагодарили: 286 раз.
Имя: Михаил
Автомобиль: Sorento XM, 2.4 (174 л/с), 4WD, AT
Год выпуска: 2009
Доп. информация: МВ С-180 AMG Style, Ford Explorer V Limited +

Re: Ищу проект бани.

Сообщение Евген81 » 26 авг 2013, 16:52

Gads писал(а):мойку забыл

это уже технический момент.Добавлю при строительстве маленькую-мне там большая не нужна.
Аватара пользователя
Евген81
 
Модератор
 
Сообщения: 43694
Зарегистрирован: 20 сен 2007, 22:09
Откуда: г. Балашиха
Благодарил (а): 84 раз.
Поблагодарили: 335 раз.
Имя: Евгений.
Автомобиль: Другая машина
Год выпуска: 2008
Доп. информация: Мерседес G55AMG
BMW 6 series 650i f12
BMW 6 f16
Пежо Боксер

Re: Ищу проект бани.

Сообщение I-man » 26 авг 2013, 16:59

Жень, смотри 20й этаж.
Все норм. получается. Не хоромы, конечно, но баня будет, что надо.
http://s018.radikal.ru/i526/1308/07/e61ed8246987.jpg
Трубу выкидывай на улицу, мойку на кухне делай возле туалета.
Дерзай, черти, строй.
Аватара пользователя
I-man
 
Партнёр Клуба
 
Сообщения: 11559
Зарегистрирован: 05 май 2009, 14:49
Откуда: Москва, СЗАО
Благодарил (а): 245 раз.
Поблагодарили: 625 раз.
Имя: Алексей
Автомобиль: Другая машина
Год выпуска: 2021
Доп. информация: Сейчас у меня старый добрый Тахыч (Шевроле Тахо)
и Гольф GTi 2,0

Re: Ищу проект бани.

Сообщение rotenflecke » 26 авг 2013, 17:04

блин, меня так радуют ваши двери по 55 см шириной ;)
для очень узких гостей ;)

вообще вот бери проект и не выпендривайся ;) массажную комнату переделываешь в жилую и не мучаешь родителей ;)

p.jpg
Вложения
1.gif
1.gif (8.19 КБ) Просмотров: 2745
Последний раз редактировалось rotenflecke 26 авг 2013, 17:05, всего редактировалось 1 раз.
возмутитель и мальчиш-плохиш
Аватара пользователя
rotenflecke
 
 
Сообщения: 13272
Зарегистрирован: 16 янв 2009, 11:11
Откуда: Москва-центр
Благодарил (а): 2 раз.
Поблагодарили: 366 раз.
Имя: Артемий
Автомобиль: Другая машина
Год выпуска: 2017
Доп. информация: Santa 2.2 high-tech, были - Santa Fe 2.2 Dynamic 2014, Sorento 2.4 2010, Sorento 2,5D 2002

Re: Ищу проект бани.

Сообщение Gads » 26 авг 2013, 17:04

I-man писал(а):Трубу выкидывай на улицу

и будешь как я, перед растопкой печи по 20 минут ее строительным феном греть, чтоб тягу перевернуть :D
Напрасно думают, что мудрость - это привилегия старости. M чудак с возрастом не становится мудрецом, он становится старым м чудаком.
Аватара пользователя
Gads
 
Модератор
 
Сообщения: 14493
Зарегистрирован: 05 окт 2009, 20:54
Откуда: Москва
Благодарил (а): 270 раз.
Поблагодарили: 286 раз.
Имя: Михаил
Автомобиль: Sorento XM, 2.4 (174 л/с), 4WD, AT
Год выпуска: 2009
Доп. информация: МВ С-180 AMG Style, Ford Explorer V Limited +

Re: Ищу проект бани.

Сообщение Евген81 » 26 авг 2013, 17:18

rotenflecke писал(а):и не мучаешь родителей

У родителей есть где жить :wink: Это помещение типа для культурного отдыха на свежем воздухе.
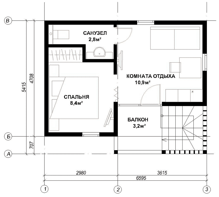
Рисую второй этаж.Позже выложу.
Аватара пользователя
Евген81
 
Модератор
 
Сообщения: 43694
Зарегистрирован: 20 сен 2007, 22:09
Откуда: г. Балашиха
Благодарил (а): 84 раз.
Поблагодарили: 335 раз.
Имя: Евгений.
Автомобиль: Другая машина
Год выпуска: 2008
Доп. информация: Мерседес G55AMG
BMW 6 series 650i f12
BMW 6 f16
Пежо Боксер

Re: Ищу проект бани.

Сообщение I-man » 26 авг 2013, 17:26

rotenflecke писал(а):меня так радуют ваши двери по 55 см шириной

Ты их сам выдумал.
Gads писал(а):и будешь как я, перед растопкой печи по 20 минут ее строительным феном греть, чтоб тягу перевернуть

В 2006-м мы заказчику сделали наружную трубу из камина. Они ни разу за все годы таким сексом не занимались.
Аватара пользователя
I-man
 
Партнёр Клуба
 
Сообщения: 11559
Зарегистрирован: 05 май 2009, 14:49
Откуда: Москва, СЗАО
Благодарил (а): 245 раз.
Поблагодарили: 625 раз.
Имя: Алексей
Автомобиль: Другая машина
Год выпуска: 2021
Доп. информация: Сейчас у меня старый добрый Тахыч (Шевроле Тахо)
и Гольф GTi 2,0

Re: Ищу проект бани.

Сообщение Евген81 » 26 авг 2013, 17:44

I-man писал(а):Ты их сам выдумал.

верно.У меня нигде размеров дверей нет и 55 не клеится .
I-man писал(а):Они ни разу за все годы таким сексом не занимались.

ну а Гадза свой ритуал :mrgreen: :lol:
Аватара пользователя
Евген81
 
Модератор
 
Сообщения: 43694
Зарегистрирован: 20 сен 2007, 22:09
Откуда: г. Балашиха
Благодарил (а): 84 раз.
Поблагодарили: 335 раз.
Имя: Евгений.
Автомобиль: Другая машина
Год выпуска: 2008
Доп. информация: Мерседес G55AMG
BMW 6 series 650i f12
BMW 6 f16
Пежо Боксер

Re: Ищу проект бани.

Сообщение 100$ » 26 авг 2013, 19:46

Я за Г. Не скажу, но как мне предложили посчитать стоимость дымохода - Юля, я обомлел!
Стоимость куска трубы в 100$ - это больше, чем до буя вплавь.
TAKE5...5/4
Аватара пользователя
100$
 
 
Сообщения: 20445
Зарегистрирован: 20 ноя 2007, 14:29
Откуда: Калуга
Благодарил (а): 834 раз.
Поблагодарили: 2387 раз.
Имя: Андрей
Автомобиль: Sorento BL, 2.5TD (170 л/с), TOD, AT
Год выпуска: 2007
Доп. информация: Первый и единственный владелец;)))

Re: Ищу проект бани.

Сообщение Sanjok » 26 авг 2013, 20:36

Евген81 писал(а):Перечертил....Намана?
Изображение

фигня, причем полная, без обид
1. в парилке поместится 1 человек, верхний полок должен минимум быть шириной 70 см, ну а размер печи, печь в плотную к стенам не ставят минимум 30 см от стены,....че за печка? Вот и считай....
2. лесница узкая, и больно крутая получится, ты по ней не то что что-то занести из мебели не сможешь но и самому подниматься будет не комфортно
3. ну а туалет с душем лажа вопще, на толче боком сидеть придётся
Аватара пользователя
Sanjok
 
 
Сообщения: 1375
Зарегистрирован: 31 июл 2009, 17:50
Откуда: Эрэфия
Благодарил (а): 35 раз.
Поблагодарили: 6 раз.
Имя: Александр
Автомобиль: Sorento BL, 2.5TD (14X л/с), Part-Time, AT
Год выпуска: 2003

Re: Ищу проект бани.

Сообщение rotenflecke » 26 авг 2013, 20:45

я ж грю - в полтора раза все увеличить и будет намана :)
возмутитель и мальчиш-плохиш
Аватара пользователя
rotenflecke
 
 
Сообщения: 13272
Зарегистрирован: 16 янв 2009, 11:11
Откуда: Москва-центр
Благодарил (а): 2 раз.
Поблагодарили: 366 раз.
Имя: Артемий
Автомобиль: Другая машина
Год выпуска: 2017
Доп. информация: Santa 2.2 high-tech, были - Santa Fe 2.2 Dynamic 2014, Sorento 2.4 2010, Sorento 2,5D 2002

Re: Ищу проект бани.

Сообщение Евген81 » 26 авг 2013, 22:25

rotenflecke

подстрекатель хренов :D
ну не хочу я не стандартные бревна заказывать или стыковать...Да и пятно застройки больше делать неохота-хочется среди домов участок еще лицезреть))
Аватара пользователя
Евген81
 
Модератор
 
Сообщения: 43694
Зарегистрирован: 20 сен 2007, 22:09
Откуда: г. Балашиха
Благодарил (а): 84 раз.
Поблагодарили: 335 раз.
Имя: Евгений.
Автомобиль: Другая машина
Год выпуска: 2008
Доп. информация: Мерседес G55AMG
BMW 6 series 650i f12
BMW 6 f16
Пежо Боксер

Re: Ищу проект бани.

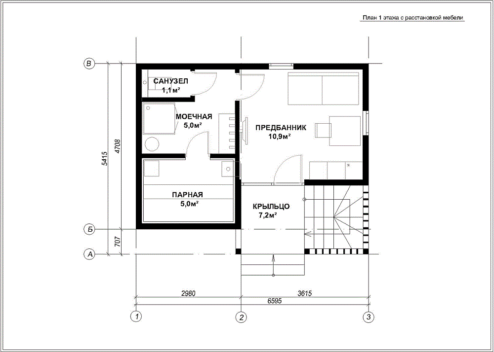
Сообщение Барс » 26 авг 2013, 23:07

Евген81
Жень, меняй местами санузел и топку - таскать дрова через комнату отдыха, грязь развозить - неправильно :!: Топка должна быть рядом с входной дверью. В санузле тесно, поэтому душ делаешь на выходе из парилки, не отделяя его дверью от предбанника (правильно я назвал закуток между комнатой отдыха и парилкой?), а унитаз будет за дверью, на нынешнем месте душа, с окошком :wink:
Если будет персональная ответственность, то начнут исполнять только на бумаге... Это хуже, чем просто не сделать. Лучше не сделать и разобраться, почему не получилось (с) Буба
Это все делается как раз для того, чтоб это не было точным прогнозом. Это оказание давление, и если не прогнутся, то случится этот прогноз (c) Буба
Аватара пользователя
Барс
 
Партнёр Клуба
 
Сообщения: 11592
Зарегистрирован: 04 авг 2008, 17:38
Откуда: Подмосковье
Благодарил (а): 1042 раз.
Поблагодарили: 715 раз.
Имя: Сергей
Автомобиль: Другая машина
Год выпуска: 2017
Доп. информация: Были: дизель рестайл 2,5 2008г.в.; бензин рестайл 3,3 2009г.в.

Re: Ищу проект бани.

Сообщение I-man » 27 авг 2013, 08:10

Сань, горбатого лепишь.
Sanjok писал(а):2. лесница узкая, и больно крутая получится, ты по ней не то что что-то занести из мебели не сможешь но и самому подниматься будет не комфортно

ТЫ считал, что так говоришь? Давай посчитаем. 2550-900(ширина площадки или забежных ступеней)=1650*2(колич. маршей)=3300-600(нижняя площадка)2700. При высоте потолков 2500 и толщине перекрытия 200 получаем угол наклона косоура лестницы 45 град. Круто, но еще удобно. Определяем высоту подступенка. 2700/11=245,5, 2700/12=225, 2700/13=207,7 Я бы выбрал 225 мм. Следовательно количество ступеней 12, Ширина проступи 22,5.
Что в этом ужасного? И это простая лестница без забежных ступеней. Лестница с забежными ступенями будет еще более пологой. Но и дороже раза в 1,5-2.
Sanjok писал(а):3. ну а туалет с душем лажа вопще, на толче боком сидеть придётся

За то никто не будет читальный зал в туалете устраивать! :D
Стандартная туалетная кабинка 1,2х0,8 и ничего, никто боком не сидит.

Добавлено через 1 минуту 7 секунд:
Барс писал(а):Жень, меняй местами санузел и топк

Согласен, Барсик дело говорит.
Аватара пользователя
I-man
 
Партнёр Клуба
 
Сообщения: 11559
Зарегистрирован: 05 май 2009, 14:49
Откуда: Москва, СЗАО
Благодарил (а): 245 раз.
Поблагодарили: 625 раз.
Имя: Алексей
Автомобиль: Другая машина
Год выпуска: 2021
Доп. информация: Сейчас у меня старый добрый Тахыч (Шевроле Тахо)
и Гольф GTi 2,0

Re: Ищу проект бани.

Сообщение rotenflecke » 27 авг 2013, 08:27

вово.. ;) смари "кубик" который я тебе раньше вывешивал - там два санузла, комната отдыха в "мирное" время становится кухней, наверху гостинная и спальня ;) если хочешь - можно наверху сделать косую крышу - получится мансардный вариант :) но в туалете крыша низкая будет

думаю, что лучше не спланируешь... практически то же что ты рисовал только покомпактнее, и то еле-еле влезает
кстати - посмотри сколько занимает лестница
2х2 - комфортные гаабриты

еще обрати внимание - санузлы точно друг над другом
Вложения
p1.gif
p2a.gif
возмутитель и мальчиш-плохиш
Аватара пользователя
rotenflecke
 
 
Сообщения: 13272
Зарегистрирован: 16 янв 2009, 11:11
Откуда: Москва-центр
Благодарил (а): 2 раз.
Поблагодарили: 366 раз.
Имя: Артемий
Автомобиль: Другая машина
Год выпуска: 2017
Доп. информация: Santa 2.2 high-tech, были - Santa Fe 2.2 Dynamic 2014, Sorento 2.4 2010, Sorento 2,5D 2002

Пред.След.

Вернуться в Квартира, дача, гараж

Кто сейчас на конференции

Сейчас этот форум просматривают: нет зарегистрированных пользователей и гости: 7